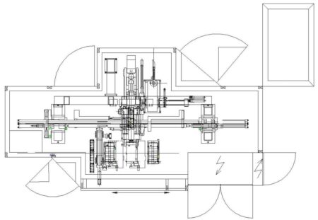
Az ELWEMA szelepülőkarika-fröccsöntő gépet 2002-ben gyártotta a német ELWEMA Werkzeug- und Maschinenbau GmbH. A gép célja az szelephelygyűrűk és az szelepvezetők alsó hengerfejekbe történő beültetése. A berendezés többek között a következőkkel van felszerelve: kenőrendszer WILLY VOGEL vezérlőegységgel, SIEMENS Sinumerik 840D CNC vezérlőegység és számos, a gép működéséhez szükséges mechanizmus.
Az RT 100-08-240 forgóasztal az ELWEMA gépágyra van szerelve, és egy acéltartókkal ellátott ívhegesztett keretből, egy összekötő lemezből és egy elektromágneses vezérlésű, 10 pozíciójú forgóasztalból áll. A szelepülőkarikák, a szelepvezetők és az összekötő lemezen lévő szelepfelvevő mechanizmusok a forgóasztal minden egyes működtetésével 36°-kal (1/10 fordulat) elforgathatók.
A szelepfoglaló gyűrűk és a szelepvezetők egy-egy hengerfejbe történő befecskendezése egy két folyamatból álló munkaciklus során történik. Az első folyamat két, folyékony nitrogénben hűtött szelepülőkarika egyidejű befecskendezése. A második folyamat a két szelepvezető egyidejű befecskendezése szobahőmérsékleten.
A hengerfej behelyezési és eltávolítási folyamat kétféleképpen – automatikusan vagy kézzel – végezhető. Az automatikus folyamatot egy portálos emelőszerkezet segítségével végzik. A mechanizmus a hengerfejet a kenésért felelős bal oldali lemezre rakja, és a jobb oldali lemezről a kirakodási helyzetben eltávolítja. A kézi folyamatot viszont egy emelő segítségével hajtják végre, miután az „automatikus betöltés” üzemmódot egy választókapcsolóval kikapcsolták.
A szelephüvelygyűrűk és szelepvezetők automatikus adagolása a befecskendező stancokhoz az átfedő és centrírozó mechanizmus, valamint a hengerfej portálemelőn lévő tartályba történő alkatrészadagoló rendszer segítségével lehetséges. Minden egyes be- és kirakodáskor a portálemelő feltölti az üzemben lévő tartályokat.
Az ELWEMA gép műszaki adatai
- A forgóasztal rekeszeinek / osztásainak száma: 10
- az egyes rekeszek / osztások forgási szöge: 36 fok
- a szelepülőkarikák és szelepvezetők betöltési magassága: 1050 mm
- üzemi nyomás: 0,5 Mpa
- energiafogyasztás: 11 kW
- üzemi feszültség: 380 V
- frekvencia: 50 Hz
- a gép méretei (hosszúság x szélesség x magasság): 4350 x 1800 x 2600 mm
- a gép súlya: 2500 kg
A szelephézag-gyűrű befecskendező gép felszereltsége
- CNC-vezérlés: SIEMENS Sinumerik 840D
- forgóasztal: RT 100-08-240
- kenőrendszer vezérlőegységgel: WILLY VOGEL
- sűrített levegős rendszer: FESTO
- automatikus jelölőberendezés: MARKATOR MV15
- vibrációs szállítószalag szelepülőkarikákhoz: SOCAUT
- hidraulikus rendszer GNG szivárgásellenőrző mechanizmussal
- szelepülőkarika adagolórendszer
- manipulációs mechanizmus a szelepülőkarikák behelyezéséhez és eltávolításához
- szelepvezető-kezelő mechanizmus
- szelepülőkarika-kezelő mechanizmus
- szerszámpozícionáló mechanizmus
- szelepvezető behelyezési ütőcsere-mechanizmus
English
Čeština
Français
Español
Deutsch
polski
Русский
Slovenčina
Italiano
Türkçe









