A HEGENSCHEIDT DH45 CNC főtengely eszterga a németországi HEGENSCHEIDT-MFD GmbH & CO. KG gyártotta 2001-ben. A gép egy speciális szerszámgép fémek megmunkálására. A SIEMENS Sinumerik CNC vezérlővel vezérelve feldolgozza a főtengelyek főcsapágyainak átmérőjét kb. 406 mm. A rakodóportál segítségével a kezeletlen főtengely felemelkedik és bekerül a gépbe, ahol a befogótokmányok megragadják a munkadarabot és megkezdik a megmunkálást. A megmunkálás a nagyoláshoz használt vágólapkákkal kezdődik, amelyeket a megmunkálás előrehaladtával váltólapkák váltanak fel a simításhoz. Amikor a folyamat befejeződött, a bilincsek kinyílnak, és sűrített levegővel tisztára fújják őket. A rakodóajtó kinyílik, és a gép a berakodási portálon keresztül megtörténik. A gép és a rakodóportál összekapcsolásának köszönhetően a megmunkálási folyamat teljesen automatikus. A forgattyústengely főtengely eszterga védőburkolatba van zárva, amely védi a személyzetet és megakadályozza a forgácsok kijutását a munkakamrából. A gép össztömege minden tartozékával együtt kb. 7100 kg.
A HEGENSCHEIDT DH45 CNC főtengely eszterga műszaki adatai
– főtengely típus: X70 T. 00042.0/2 / 1600 cm3 / 465 39960.1 főtengely, 4 hengeres motor
– csapágyak száma egyidejű megmunkáláshoz: 5
– főtengely hossza: kb. 406,6 ± 0,30 mm
– csapágy átmérő: Ø51 ± 0,01 mm
– csapágyszélesség: 21,12 / 23 ± 0,2 / 24 ± 0,025 mm
– löket: 41 mm
– maximális nyomaték: kb. 9000 Nm
– előtolás fordulatszáma: akár 7 ford./perc
– nagy sebességű haladási sebesség: 7 ford./perc
– gyors futási sebesség: 10 m/perc
– a fejszár beállítása a jobb/bal oldalon: manuálisan
– főcsapágy átmérő: ± 0,05 mm
– csapágyszélesség: ± 0,1 mm
– hossz eltérés: ± 0,1 mm
– hidraulika olaj: 400 l
– kenőegység (szilárd kenőanyag): 5,5 kg
– olajterhelés (fejrész): 21 l
– olajterhelés (a tokmány kenése): 6 l
– sűrített levegő csatlakozás: min 4 bar, 20 m3/h
– szellőző csatlakozás: Ø 250 mm, kb 2000 m3/h
– hangnyomásszint: 73 dB (A)
– hangnyomás csúcsértéke: 102,5 dB (A)
– főmotor: 37 kW
– szerszámhajtás (2000 ford./percnél): 38 Nm
– előtolás (3000 ford./percnél): 10,3 Nm
– hidraulikus motor (1500 ford./percnél): 4 kW
– fejrész kenőmotor: 2x 0,03 kW
– markolat kenőmotor: 0,07 kW
– hálózati csatlakozás: 380 V
– hálózati feszültség tolerancia: ± 6-10%
– hálózati frekvencia: 50 Hz
– csatlakozási teljesítmény: kb. 65 kW
– vezérlő feszültség: 24 V
– Segédfeszültség: 220V, 50Hz
– 100% CW hajtási teljesítmény: 37 kW
– fordulatszám tartomány terhelés alatt megmunkálás közben: 20 – 1500 ford./perc
– teljes beépített teljesítmény: 45 kW
– aDH45 gép össztömege tartozékokkal: kb. 7100 kg
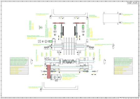
A DH45 gép főtengelyekhez való felszerelése
– CNC vezérlés: SIEMENS Sinumerik
– portál betöltése
– szerszámmérő készülék
– szerszámváltó
– megfogó rendszer a szerszámdobhoz
– kenőrendszer
– védőburkolat
– kapcsolószekrény (2 db)
– konzol
– hidraulikus egység
– szállítókocsi
– tartozékok doboza
English
Čeština
Français
Español
Deutsch
polski
Русский
Slovenčina
Italiano
Türkçe





































