HIDRAL EH-1500 teherlift 2013-ban gyártották. Az acélvázas teherlift csarnokokban és raktárakban használják, ahol nehéz áruk emeletközi szállítására van szükség.
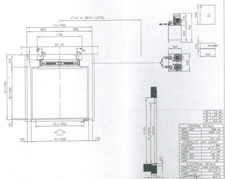
A hidraulikus hengerrel működtetett daru lehetővé teszi az 1000 kg összsúlyú áruk mozgatását három megálló között, amelyek a 0 mm, 2800 mm és 5500 mm szinteken helyezkednek el. A platform egy 1700 x 1560 x 8155 mm (L x Sz x H) méretű aknába van beépítve, és 0,2 m/s sebességgel mozog. Vezérlése relével történik.
A HIDRAL EH-1500 teherlift műszaki paraméterei
- A padlószintnek megfelelő szintmagasságok: R0 – 0 mm, R1 – 2800 mm, R2 – 5500 mm.
- emelőképesség: 1000 kg
- platformsebesség: 0,2 m/s
- emelési magasság: 5,5 m
- megállók száma: 3
- emelvénytengely: trapézlemezzel burkolt acélszerkezet
- tengelyméretek (H x B x H): 1700 x 1560 x 8155 mm
- vezérlés típusa: relé
- ajtó típusa: E/222 típusú kézi, egyszárnyú lengőajtó
- kábelek száma: 4
- a hidraulikus aggregátortartály kapacitása: 50 l
English
Čeština
Français
Español
Deutsch
polski
Русский
Slovenčina
Italiano
Türkçe

















