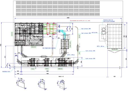
Az INDUFINISH porfestő üzem 2013 ban épült a holland LBtec Indufinish b.v. vállalat által. A porfestő üzem a következő elemekből áll: előkezelő alagút, mosókamra, szárító/fűtőkemence, demineralizált vízállomás, INOX festőkabin. Az egész rendszert egy SIEMENS PLC vezérlőrendszer vezérli.
A szállítószalag átlagosan 0,8 m/perc sebességgel mozog ( a sebesség 0,5 és 3 m/perc közötti tartományban állítható). 600 mm hosszú kampókkal van felszerelve, amelyekre legfeljebb 150 kg súlyú és 2200 x 640 x 1550 mm méretű (H x Sz x K) munkadarabok helyezhetők.
600 mm hosszú kampókkal van felszerelve, amelyekre legfeljebb 150 kg tömegű és 2200 x 640 x 1550 mm méretű (hosszúság x szélesség x magasság) munkadarabok helyezhetők.
Az előkezelő alagút 1600 mm hosszú, 70 fúvókát tartalmazó, 13,5 l/perc kapacitású szórórendszerrel rendelkezik. Ezenkívül egy Lowara SH 50-125/5,5 permetezőszivattyúval rendelkezik 5,5 kW-os és 2900 fordulat/perc teljesítményű teljesítménnyel.
A szárító/keményítő kemence moduláris szendvicspanelekből épül, legalább 150 mm vastag ásványgyapot szigeteléssel. A belső tér legalább 25 µ vastagságú horganyzott acéllemezből készül. A hőátadás a munkadarabokhoz légkonvekcióval történik.
A moduláló égőből származó égési gázok egy hőálló rozsdamentes acél égőcsövön áramlanak keresztül, amely egyenletesen keveri a gázokat az egész égőtérben. Az állandó mennyiségű levegő a kivezető csövön keresztül elszívódik és kivezetésre kerül, ahol a szabványos nyílásokon keresztül automatikusan friss levegővel pótolják.
A festőműhely leszerelése előtt lehetőség van arra, hogy az INDUFINISH porfestő üzem használatára vonatkozó oktatást adjon az ügyfélnek a gép árában. Lehetőség van két, egyenként 65 kW-os gázkazán megvásárlására is.
Az INDUFINISH porfestő üzem általános műszaki adatai
- PLC vezérlő: SIEMENS
- szállítósor sebessége: 0,5 – 3m/perc
- maximális munkadarab súly: 150 kg
- a munkadarab méretei (hosszúság x szélesség x magasság): 2200 x 640 x 1550 mm
- a kampók hossza: 600 mm
- fűtési energia: gáz
- elektromos csatlakozás: 3 x 400 V + N + Pe
- sűrített levegő: 6 bar
Az INDUFINISH porfestő üzem egyes elemeinek részletes műszaki paraméterei
ELŐKEZELŐ ALAGÚT
Szórórendszer
- hossza: 1600 mm
- permetezőnyakörvek: 5 db.
- fúvókák/rúd: 14 db.
- Fúvókák teljesítménye: 1,2 bar mellett 13,5 l/min
- Fúvókák száma összesen: 70
- fúvóka típusa: V-fúvóka típus: V-jett polyprop
Permetező szivattyú
- típus: vízszintes, centrifugális
- szivattyú: Lowara SH 50-125/5.5
- anyag: rozsdamentes acél 304
- járókerék anyaga: rozsdamentes acél 304
- tömítés típusa: mechanikus tömítés Sic/Car
- kapacitás: 57 m³/h
- nyomás: 1,8 bar
- teljesítmény: 5,5 kW
- fordulatszám: 2.900 rpm
Fűtés
- közeg: meleg víz
- teljesítmény: 200 kW
- hőcserélő: hőcserélő tisztító csatlakozásokkal (Alfa Laval)
- hűtőközeg-szivattyú: 304 rozsdamentes acél
- kapacitás: 20 m³/h
- teljesítmény: 0,75 kW
Tartály
- térfogat: 2,3 m³
- folyadék magassága: 700 mm
- Tartály anyaga: A tartály anyaga: PP
- szigetelés: 50 mm
- méretek (hosszúság x szélesség x magasság): 1700 x 2150 x 800 mm
MOSÓKAMRA
- Permetező rendszer
- hossza: 800 mm
- permetező gallérok: 3 db.
- fúvókák/rúd: 14 db.
- fúvókák teljesítménye: 1,2 bar nyomáson 12 l/min
- fúvókák száma összesen: 42
- fúvóka típusa: V-fúvóka típus: V-jett polyprop
Permetező szivattyú
- típus: vízszintes, centrifugális
- szivattyú: Lowara SH 32-160/22
- anyag: rozsdamentes acél 304
- járókerék anyaga: rozsdamentes acél 304
- tömítés típusa: mechanikus tömítés Sic/Car
- kapacitás: 30 m³/h
- nyomás: 1,8 bar
- teljesítmény: 1,5 kW
- fordulatszám: 2900 fordulat/perc
Tartály
- térfogat: 1,1 m³
- folyadék magassága: 700 mm
- méretek (hosszúság x szélesség x magasság): 1000 x 2150 x 800 mm
SZÁRÍTÓ/KEMÉNYÍTŐ KEMENCE
- termék belépési hőmérséklete: 20 °C
- a kemencében töltött idő: 20-30 perc
- levegő hőmérséklete: 200 °C
- maximális hőmérséklet: 225 °C
- égők: 1 WG 30 + 1 WG20
- maximális teljesítmény: 470 kW
- névleges teljesítmény: 380 kW
- légkeringés: 36 000 m³/h
- ventilátorok száma: 3 db
English
Čeština
Français
Español
Deutsch
polski
Русский
Slovenčina
Italiano
Türkçe









































