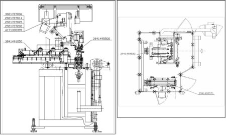
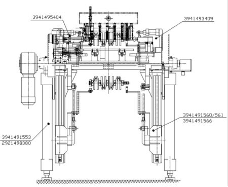
A MARPOSS M110 forgattyús tengelyek mérőgépét az olasz MARPOSS S.p.A. cég gyártotta 2001-ben. A gépet az SDI 4 hengeres motorok tengelyeinek mérésére használják a hibás részletek kiküszöbölése érdekében. A gép egy 10 darabos kapacitású csatornával van felszerelve a selejt alkatrészek számára, egy ingafutárral, amely a selejt alkatrészeket a raklapokról veszi le és helyezi el a selejt csatornába, valamint egy SIEMENS S7-300 PLC vezérlővel.
A MARPOSS M110 mérőgép által a forgattyús tengelyeken végzett műveletek listája:
- a főtengelyek három szakaszának átmérőjének mérése
- mérés a karima 1 keresztmetszetében
- a szár átmérőjének mérése 3 szelvényben
- a főtengelycsapok koncentricitásának mérése
- a szár átmérőjének koncentrikus mérése 28
- a szár átmérőjének koncentrikus mérése 29
- Karima koncentricitásának mérése
- a főcsapágyak koncentricitásának mérése
- a főcsapágyak hengercentrikusságának mérése
A forgattyústengely mérési eljárása MARPOSS gépet
1. A mérőállomás alá egy raklap blokkolása a munkadarabbal prestop segítségével.
2. a motor forgattyútengelyének emelése a méréshez egy emelővel
3. a szögelrendezés korrekciója a lendkerék felőli első forgattyúcsapra ható két vezető segítségével
4. a laza lapát és a motoros lapát bezárása
5. a motoros lapáton elhelyezett tüskék behelyezése a munkadarab megfelelő furataiba, hogy a forgatás során a munkadarabot megfelelően meg lehessen húzni.
6. a mérőcellák átvitele a munkadarabra a hajtóműves motoron keresztül
7. mérések elvégzése a munkadarab félig elforgatása után
8. a munkadarabot a félfordulat után ugyanolyan tájolással juttassa vissza, mint a betöltéskor volt
9. a mérőcellák kiemelése
10. a pengék és ellenpengék kinyitása
11. a munkadarab visszahelyezése a raklapra
A MARPOSS M110 forgattyús tengelyek mérőgépét paraméterei
- PLC vezérlő: SIEMENS S7-300
- elektronikus mérőberendezés: Marposs E9066
- mérőbitek száma: 44
- a mérések teljes száma: 38
- munkadarab-ciklusidő: 22 másodperc
- tisztítási és kalibrálási ciklusidő: 42 másodperc
- a hibás munkadarabok kirakodásának ideje: 29 másodperc
- meghajtás típusa: elektromechanikus és pneumatikus
- csatornakapacitás a selejtes munkadarabok számára: 10 db.
- légkondicionáló berendezés: RITTAL SK3203-100
- üzemi nyomás: 0,45 MPa
- biztonsági nyomás: 0,40 MPa
- tápfeszültség: 24 Vdc
- átlagos levegőfogyasztás: 6 Nm3/h
- tápfeszültség: 380Vac háromfázisú
- frekvencia: 50 Hz
- maximális energiafogyasztás: 5 KVA
- névleges áram: 7,5 A
- MARPOSS M110 gép méretei (H x B x H): 4400 x 3850 x 2600 mm
- a gép súlya: 3500 kg
English
Čeština
Français
Español
Deutsch
polski
Русский
Slovenčina
Italiano
Türkçe







