AMENABAR E34110M 1000kg portáldaru 2018-ban készült Spanyolországban. Az E43110M elektromos emelővel felszerelt egységet úgy tervezték, hogy akár 1000 kg súlyú terheket is emeljen és vontasson 5500 mm magasságig. A portáldaru rögzített magasságú vázszerkezettel és 4 garnitúra polymadból készült, fékkel ellátott forgó kerekekkel rendelkezik, így a gép ideális egyenes és kemény felületeken való használatra olyan helyiségekben, mint például gyártócsarnokok, műhelyek és raktárak.
Az AMENABAR E34110M 1000kg portáldaru műszaki leírása
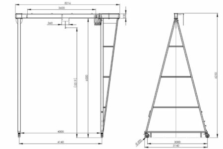
- emelőképesség: 1000 kg
- emelési magasság: 5500 mm
- portáldaru típusa: B3 típus egy 1/2V támasszal, fix magasságú vázzal.
- E43110M elektromos emelő: Q=1,0t, Hp=5,5m, WE, tápegység: 230V
- magasság a pálya alsó karimájáig: 6000 mm
- teljes magasság: kb. 6250 mm
- belső szélesség: 4000 mm
- teljes szélesség a gerenda magasságában: kb. 4900 mm
- tengelytáv a támaszon: 3000 mm
- futómű: poliamid kerekek.
- munkakörülmények: beltérben
- elektromos szerelés: kábelcsatorna, függöny a futógerenda mentén
- üzemi hőmérséklet: -10 °C és +40 °C között, relatív páratartalom 20 °C-on legfeljebb 80%-os relatív páratartalom mellett
- a gép standard színe: kék RAL 5010
English
Čeština
Français
Español
Deutsch
polski
Русский
Slovenčina
Italiano
Türkçe





